|
| |
|
| |
|
| |
|
| |
| Reinforcing materials manufactured through the foaming method |
| |
 |
| |
 |
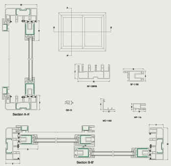
126m/m balcony widows |
|
| |
 |
|
 |
| |
 |
Usable materials |
| No |
Name |
| 1 |
BF-126RB |
| 2 |
SF-115B |
| 3 |
SF-115B |
| 4 |
GB- 10 |
| 5 |
MF-115 |
|
|
|
|
| |
 |
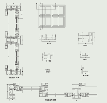
Short window school window |
|
| |
 |
|
 |
| |
 |
Usable materials |
| No |
Name |
| 1 |
BF-115 |
| 2 |
SF-115G |
| 3 |
MC-115G |
| 4 |
GB-91P |
| 5 |
MF-115 |
|
|
|
|
| |
 |
| |
 |
126m/m balcony widows |
|
| |
|
| |
 |
Short window school window |
|
| |
|
|
|
|
| |
|
 |
|