 |
|
 |
| |
 |
Usable materials |
| No |
Name |
| 1 |
BF-186 |
| 2 |
BF-96 |
| 3 |
SF-115B |
| 4 |
GB-91P |
| 5 |
MF-115 |
|
|
|
|
| |
 |
96m/m Sliding panel windows |
|
| |
 |
|
 |
| |
 |
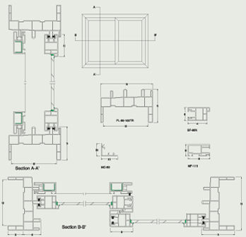
Usable materials |
| No |
Name |
| 1 |
PL-96-100TR |
| 2 |
SF-80N |
| 3 |
MC-80 |
| 4 |
MF-115 |
|
|
|
|
| |
 |
| |
 |
186m/m Small Double Window |
|
| |
| Characteristics |
 |
Structural stability (surrounding structure) |
 |
Improve smoothness at opening and closing as well as to improve
abrasion-resistance of frame rail |
 |
Increase the window frame bending and intensity of welding |
 |
Increase of screen intensity and formation of door-knob structure |
| Color Types |
 |
1500(W)X1200(H) : Maximum size |
| Glass thickness |
 |
3~6m/m, 12m/m |
| Applicability |
 |
Sliding windows for villas and houses |
|
| |
 |
96m/m Sliding panel windows |
|
| |
|